$6,249.00

At the lowest initial investment and lowest operational cost, a large silent air circulating blower will assure complete circulation of warm, filtered air throughout the entire area to be heated.
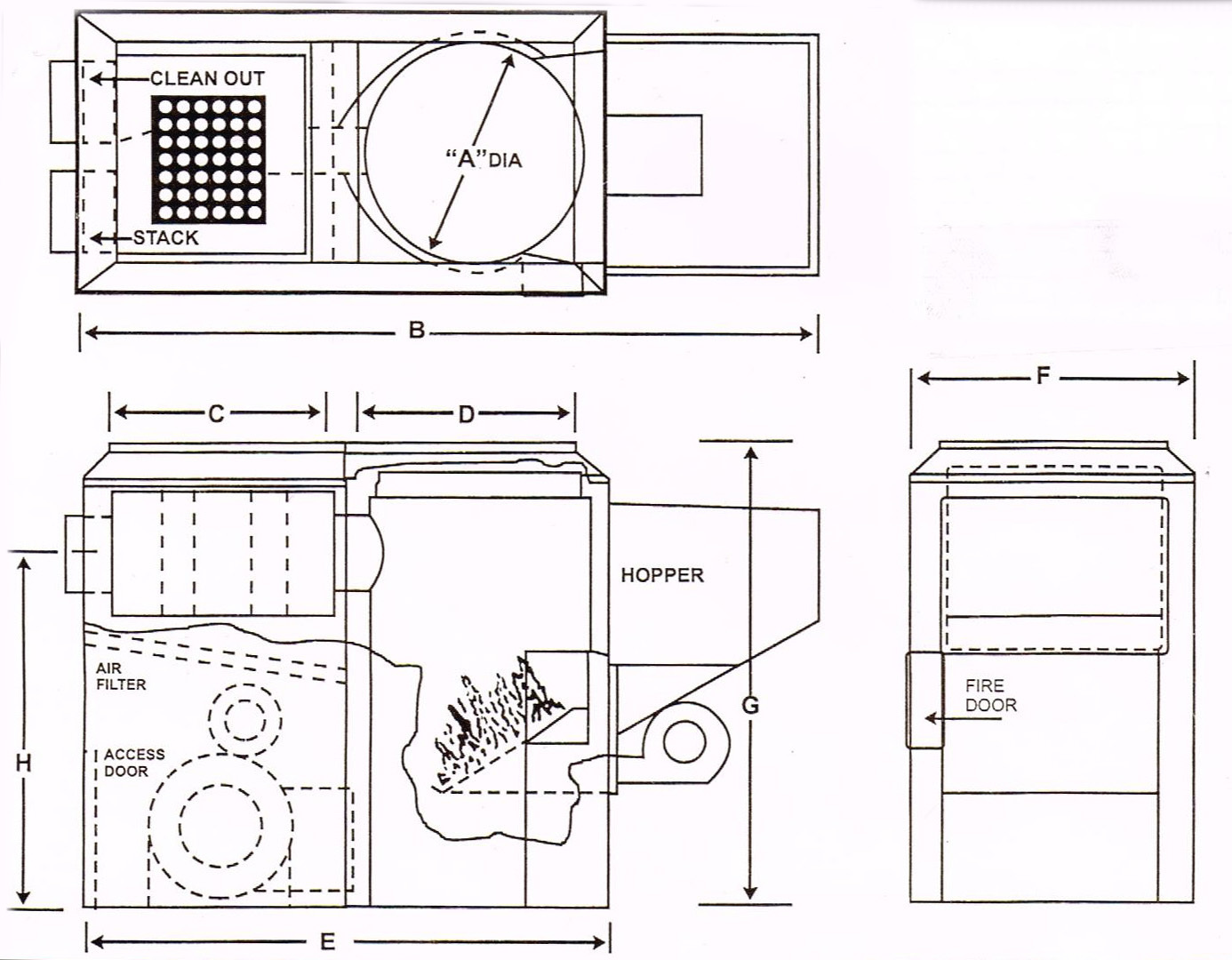
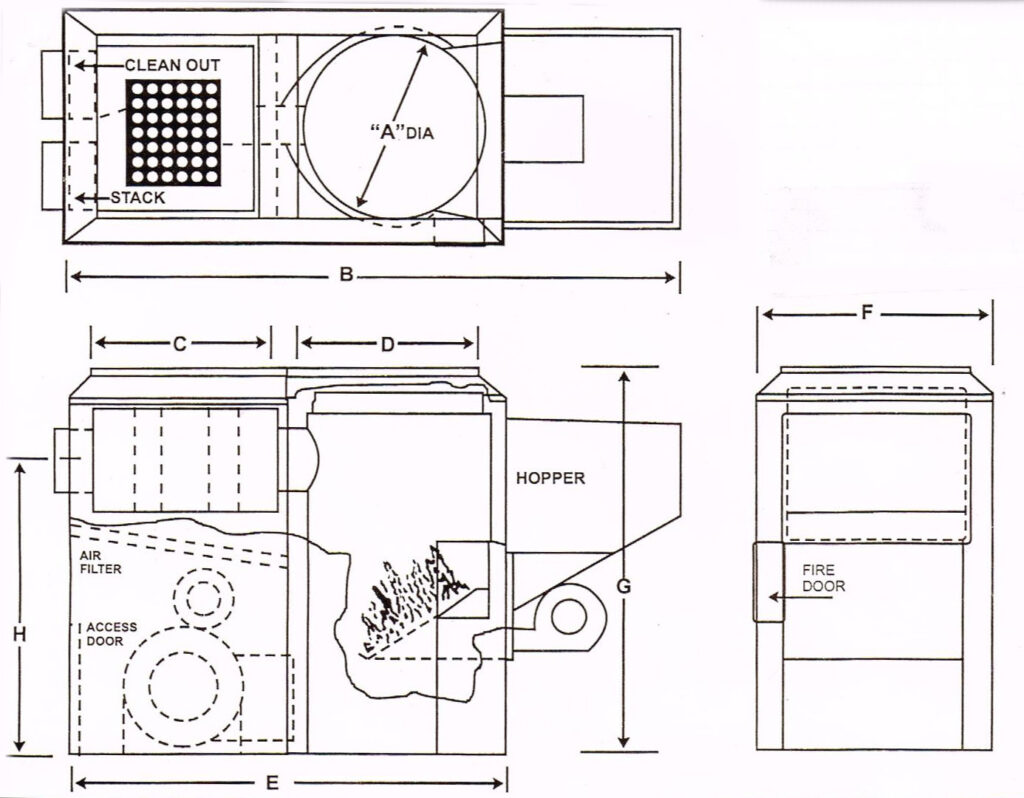
The downdraft heat exchanger increases heating surface, permitting circulation of every thermal unit of heat into the warm air lender pipes for rapid distribution.
Sealed ash pit assures clean dust-free operation.
Standard equipment includes: three controls, room thermostat timer, relay control, blower and motor, fiberglass filters, and two ASL receptacles.